コーポフレイグランス 2DK
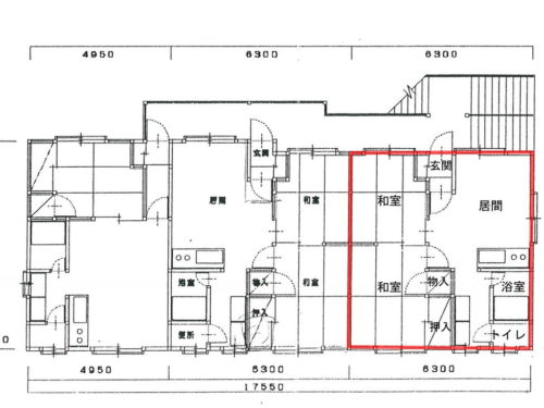
間取
外観
居間
居間
居間
寝室
寝室1
寝室
寝室2
キッチン
洗面所
風呂
【賃貸】アパート
所在地:北海道 虻田郡倶知安町 南7条西1丁目
物件詳細
物件番号:03160502
募集状況:商談中
延床面積:42.52m²
建物階数:地上3階
部屋階数:3階
築年月:1988/11
新築/中古:中古
建物構造:木造
駐車場:空有 建物1階部分シャッター付き車庫(高さの制限がございます)
取引態様:仲介
設備・条件: 定期借家契約 , ユニットバス , バス・トイレ別 , 電気暖房 , 石油暖房 , ガス給湯 , プロパンガス , 下水 , 駐車場有
特記事項:
・リフォーム済み(ウォシュレット、各部屋シーリンクライト、カメラ付きインターフォン等)
・即入居可能。
・2年間の定期借家賃貸になります。
・3階建/3階(1階部分はガレージスペース)
・住宅損害保険加入必要
・退去時に清掃費として49,500円がかかります。
・入居期間が2年未満の場合は敷金の返還はいたしません。
・ルームシェアはお断りいたします。
・冬季駐車場入り口除雪代(1シーズン27,500円)がかかります。
・車庫1台分ついてます。 (2台目駐車不可)
・複数のスタッフが使用する社員寮としての利用はできません。(従業員一人またはその家族のみ可)
募集状況:商談中
延床面積:42.52m²
建物階数:地上3階
部屋階数:3階
築年月:1988/11
新築/中古:中古
建物構造:木造
駐車場:空有 建物1階部分シャッター付き車庫(高さの制限がございます)
取引態様:仲介
設備・条件: 定期借家契約 , ユニットバス , バス・トイレ別 , 電気暖房 , 石油暖房 , ガス給湯 , プロパンガス , 下水 , 駐車場有
特記事項:
・リフォーム済み(ウォシュレット、各部屋シーリンクライト、カメラ付きインターフォン等)
・即入居可能。
・2年間の定期借家賃貸になります。
・3階建/3階(1階部分はガレージスペース)
・住宅損害保険加入必要
・退去時に清掃費として49,500円がかかります。
・入居期間が2年未満の場合は敷金の返還はいたしません。
・ルームシェアはお断りいたします。
・冬季駐車場入り口除雪代(1シーズン27,500円)がかかります。
・車庫1台分ついてます。 (2台目駐車不可)
・複数のスタッフが使用する社員寮としての利用はできません。(従業員一人またはその家族のみ可)

